Preview only — see all hotel photos
See all 94 photos
Visa hotell på karta
Billabong
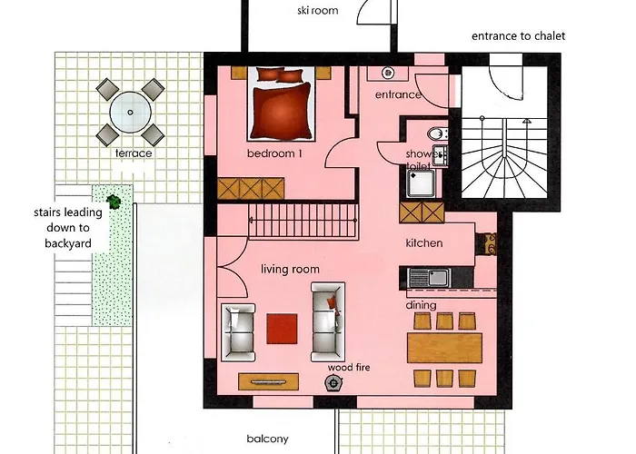
Billabong Lägenhet Grindelwald, som har en terrass, ligger ungefär 17 minuter till fots från Aellfluh. Den här 140 m² stora lägenheten erbjuder också en parkering på plats.
Gästerna bor inte långt från Bachalpsee-sjön och ungefär 1 km bort från tågstationen Grindelwald. Cirka 19 minuters promenad från lägenheten hittar du Sportzentrum Grindelwald.
På boendet har gästerna tillgång till vardagsrum, balkong och terrass, tillsammans med tvättmaskin. En separat toalett och en dusch erbjuds i lägenheten och garanterar en bekväm vistelse. Det finns också hårtorkar, badlakan och handdukar.
Förutom ett komplett kök, erbjuder boendet matplats och utomhusmatplats. Den närmaste flygplatsen Bern-Belp ligger 70 km från Billabong Lägenhet med 2 sovrum, medan busshållplatsen Stein ligger mindre än 50 meter bort. Vandring och skidåkning hjälper gästerna att variera sin aktiva fritid.
Bekvämligheter
Viktiga bekvämligheter
- Wi-Fi
- Gratis parkering
- Incheckning/Utcheckning
- Aktiviteter
- Barnvänligt
- Husdjur ej tillåtna
Faciliteter
- Helt rökfritt
- Wi-Fi
- Gratis parkering
- Snabbincheckning/-utcheckning
- Inga husdjur
- Skidförråd
- Elektrisk vattenkokare
- Torktumlare
- Köksgeråd
- Matplats utomhus
- Solterass
- Trädgård
- Grill faciliteter
- Skidåkning
- Vandring
- Golfbana
- Uppvärmning
- Sittgrupp
- Uteplats
- Terrass
- Trädgårdsmöbler
- Te- och kaffefaciliteter
- Matbord
- Strykservice
- Tvättmaskin
- LCD-TV
- CD-spelare
- Barnsängar
Policy
Karta
Lokala sevärdheter
Sevärdheter
- Kino Bernerhof (1,1 km)
- Ski Lift Aspenhubel (700 m)
Flygplatser
- Bern-Belp flygplats (68 km)
Tågstationer
- Grindelwald Grund (700 m)
Recensioner
100% Verifierade recensioner